Wohnungen in Niesky mieten

1-Raum-Wohnung

Pestalozzistr. 20, Niesky - Hereinspaziert in Ihr neues Zuhause!

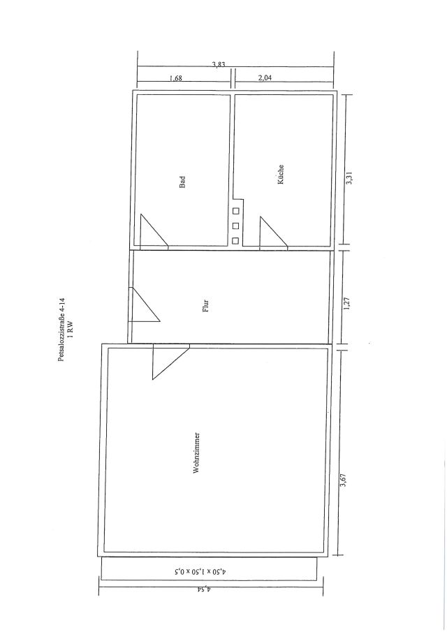
Wohnfläche

41,00 m²

Zimmer

1

Etage

Part.

Kaltmiete

295,20 €

Nebenkosten*

90,00 €*

Gesamtmiete

385,20 €

Objektzustand: Modernisiert
Baujahr: 1975
Qualität der Ausstattung: Normale Qualität
Heizungsart: Zentralheizung
Wesentliche Energieträger: Fernwärme
Energieausweistyp: Verbrauchsausweis
Energieverbrauchskennwert: 68 kWh/(m²*a)
Energieverbrauch für Warmwasser enthalten: Ja
Energieausweis: liegt vor, kann eingesehen werden 
Bezugsfrei ab: 01.11.2025
Stellplatz: Außenstellplatz
Anzahl Garage/ Stellplatz: 1

Objektbeschreibung

Sie mieten eine Wohnung in einem ruhigen Mehrfamilienhaus in Niesky. Das Haus wurde komplett saniert und bietet pro Aufgang 8 Mietparteien ein gepflegtes Zuhause. Das Wohngebiet ist als verkehrsberuhigter Bereich ausgewiesen und liegt in unmittelbarer Nähe zum Zentrum Nieskys.

Ausstattung

Die kleine gemütliche Wohnung verfügt über einen großen Balkon. Dieser lädt zum gemütlichen Verweilen ein. Das moderne Bad verfügt über eine Badewanne mit Duschabtrennung und ein eigenes Fenster. Fenster, Türen, sanitäre Anlagen und alle Versorgungsleitungen sind nach gültigen Standards ausgeführt, Wasser- und Heizungsverbräuche werden pro Wohneinheit erfasst und abgerechnet. Telefon und Internetversorgung sind genauso selbstverständlich wie eine Gegensprechanlage für die Haustüröffnung. Bei Bedarf steht gegebenenfalls ein PKW-Stellplatz zur Verfügung. Im Hof bzw. auf dem Dachboden haben Sie die Möglichkeit, Wäsche zu trocknen. Zur Wohnung gehört auch ein eigener Kellerraum.

Lage

Ganz in der Nähe (ca. 5 Gehminuten) befindet sich ein Einkaufszentrum mit Lebensmittel-, Schuh- und Textilgeschäften. Ebenso schnell sind Sie im Zentrum Niesky´s mit vielen kleinen Geschäften sowie Ärztehaus, Apotheke und Schulen. In Sachen Freizeitgestaltung hält Niesky viele kulturelle und sportliche Angebote bereit.

Ansprechpartner:
Frau Antje Mett

03588 2544-15
mett@wobag-niesky.de

Dieses Objekt anfragen

Felder die mit * gekennzeichnet sind, sind Pflichtfelder.
ntt
ntt
ntt
ntt
Einwilligung*

*Die Heizkosten sind im Angebot nicht mit enthalten. Sie werden direkt über die Stadtwerke Niesky abgerechnet.

Top